PROPIEDAD EXCEPCIONAL EN UN ENTORNO DE NATURALEZA – Ref. AH00290

  • 786.000€
Sant Martí Sarroca, Penedés
A la venta
PROPIEDAD EXCEPCIONAL EN UN ENTORNO DE NATURALEZA – Ref. AH00290
Sant Martí Sarroca, Penedés
  • 786.000€

Descripción

Propiedad única recientemente reformada en su totalidad, situada en un entorno encantador a 22 km de Sitges y a 48 km de Barcelona. La vivienda que forma parte del término municipal de Sant Martí Sarroca está a 5 minutos en coche de todos los servicios. 

Desde el exterior, se destaca por su diseño, con líneas limpias, un doble tejado en dos niveles y una enorme fachada de cristal. 

Las grandes cristaleras de hasta 5,80 m. de altura abren la casa a su entorno, donde la luz y la belleza del paisaje se integran con el interior. 

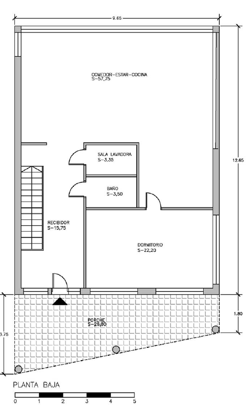
En la planta principal, la distribución abierta del gran salón, el comedor y la cocina se funden armoniosamente entre sí. La completa una gran habitación/despacho con ventanas al cielo, armarios empotrados, un aseo y un office con zona de lavado. 

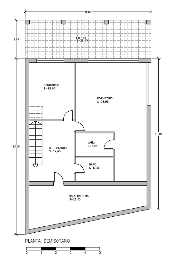
En la planta inferior se sitúan las habitaciones: 

Una suite con baño de casi 50 m². Una segunda habitación doble, un segundo baño y un espacioso almacén, que se puede trasformar fácilmente en otra habitación. 

Ambos dormitorios tienen salida directa a una bonita e íntima terraza cubierta que se abre al jardín. 

La casa está construida sobre un solar de 848 m² más un segundo solar edificable de 824 m² actualmente integrado en el jardín, pero con posibilidad de segregar y construir una segunda vivienda, lo que convierte esta propiedad en una estupenda inversión con un magnífico potencial.  

En resumen, esta casa contemporánea ofrece mucha comodidad, un entorno natural y a un paso de todos los servicios.  

Planos de planta

image

Descripción:
PLANTA 0

image

Descripción:
PLANTA 1

image

Descripción:
PLANO EXTERIOR

  • Ciudad Penedés
  • Zona Sant Martí Sarroca

Detalles

Actualizado en abril 16, 2026 a 10:31 am
  • ID Inmueble: AH00290
  • Precio: 786.000€
  • Tamaño Inmueble: 240 m²
  • Tamaño Parcela: 1672 m²
  • Dormitorios: 4
  • Baños: 3
  • Tipo de Propiedad: Casa
  • Estado Inmueble: A la venta

CERTIFICADO DE EFICIENCIA ENERGÉTICA

  • Calificación Consumo: F
  • Calificación Emisiones: E
  • Consumo de energía [kWh/m² año]: 293
  • Emisiones [ CO₂/m² año]: 59
  • A
  • B
  • C
  • D
  • E
  • E | Clase energética F
    F
  • G

Información de contacto

Ver Inmueble

Preguntar sobre esta propiedad

Comparar listados

Comparar
Apple Houses
  • Apple Houses